Description
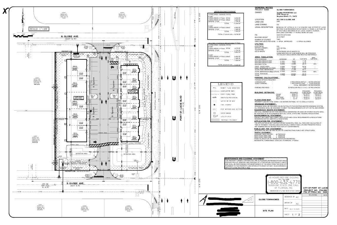
Prime Development Opportunity in Desirable Location Location: Secure this 1.17-acre parcel in a highly soughtafter, prime location. Ready-to-Build: The property features site plans already approved for 13 units,streamlining your development timeline and significantly reducing typical entitlement risks. Flexible Zoning:Benefit from flexible LMD (Limited Mixed-Use Development) zoning, which provides numerous options to buildvarious multifamily residences or diverse business types. This versatile zoning unlocks a wide range ofinvestment possibilities. Investment Potential: This rare, de-risked opportunity is ideal for developers orinvestors looking for a project with established approvals in a strong market.
-
0BEDS
-
1.17ACRES
-
0BATHS
-
01/2 BATHS
School Ratings & Info
Description
Prime Development Opportunity in Desirable Location Location: Secure this 1.17-acre parcel in a highly soughtafter, prime location. Ready-to-Build: The property features site plans already approved for 13 units,streamlining your development timeline and significantly reducing typical entitlement risks. Flexible Zoning:Benefit from flexible LMD (Limited Mixed-Use Development) zoning, which provides numerous options to buildvarious multifamily residences or diverse business types. This versatile zoning unlocks a wide range ofinvestment possibilities. Investment Potential: This rare, de-risked opportunity is ideal for developers orinvestors looking for a project with established approvals in a strong market.
All listings featuring the BMLS logo are provided by BeachesMLS Inc. Copyright ©2026 BeachesMLS, Inc. IDX information is provided exclusively for consumers' personal, non-commercial use and it may not be used for any purpose other than to identify prospective properties consumers may be interested in purchasing. This information is not verified for authenticity or accuracy and is not guaranteed. Data last updated 2026-01-12T10:39:17.263.
