Description
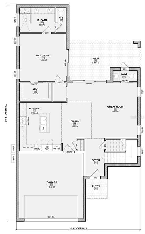
Pre-Construction. To be built. *Seabreeze Model* Community Award winner in Parade of Homes. Palma Sola Grande is an Exclusive Gated Community in West Bradenton featuring 16 new construction homes overlooking Palma Sola Bay. The Seabreeze Model is a coastal contemporary two-story home with a spacious great room, gourmet kitchen, private first floor primary suite, two additional bedrooms upstairs plus a loft. All plans are open-concept and built to entertain, with brilliant natural light pouring into the expansive living space and shining throughout the home. The gourmet kitchen is perfect for cooking and entertaining, featuring Thermador stainless-steel high-end appliances and stunning quartz countertops. The private primary suite features a roomy walk-in closet, ensuite bathroom featuring a freestanding soaking tub and a spacious walk-in shower with glass enclosure and sleek finishes. Other features include an oversized two car garage, metal roof system, and hurricane impact-resistant windows and doors. The front yard and the fenced backyard feature lush low maintenance tropical landscaping. You will love the ideal location with close proximity to the Gulf Beaches of Anna Maria Island, IMG Academy and Golf Course, Robinson Preserve, Historic DeSoto National Park, downtown Bradenton, St. Pete, the cultural and culinary arts of Sarasota, shopping, stores, restaurants, and medical facilities. Keep your boat at one of several nearby Marinas. Walk or ride bikes to the Robinson Preserve, a 682-acre nature preserve offering trails, kayak launches & a picnic area. This is the ultimate Florida lifestyle location! Contact us today to set up a private tour and experience the beauty and lifestyle firsthand before the community sells out! The Seabreeze Model is designed specifically for lots 10 and 11.
-
3BEDS
-
0.21ACRES
-
2BATHS
-
11/2 BATHS
-
2,084SQFT
-
$528$/SQFT
School Information
Description
Pre-Construction. To be built. *Seabreeze Model* Community Award winner in Parade of Homes. Palma Sola Grande is an Exclusive Gated Community in West Bradenton featuring 16 new construction homes overlooking Palma Sola Bay. The Seabreeze Model is a coastal contemporary two-story home with a spacious great room, gourmet kitchen, private first floor primary suite, two additional bedrooms upstairs plus a loft. All plans are open-concept and built to entertain, with brilliant natural light pouring into the expansive living space and shining throughout the home. The gourmet kitchen is perfect for cooking and entertaining, featuring Thermador stainless-steel high-end appliances and stunning quartz countertops. The private primary suite features a roomy walk-in closet, ensuite bathroom featuring a freestanding soaking tub and a spacious walk-in shower with glass enclosure and sleek finishes. Other features include an oversized two car garage, metal roof system, and hurricane impact-resistant windows and doors. The front yard and the fenced backyard feature lush low maintenance tropical landscaping. You will love the ideal location with close proximity to the Gulf Beaches of Anna Maria Island, IMG Academy and Golf Course, Robinson Preserve, Historic DeSoto National Park, downtown Bradenton, St. Pete, the cultural and culinary arts of Sarasota, shopping, stores, restaurants, and medical facilities. Keep your boat at one of several nearby Marinas. Walk or ride bikes to the Robinson Preserve, a 682-acre nature preserve offering trails, kayak launches & a picnic area. This is the ultimate Florida lifestyle location! Contact us today to set up a private tour and experience the beauty and lifestyle firsthand before the community sells out! The Seabreeze Model is designed specifically for lots 10 and 11.
© 2025 My Florida Regional MLS DBA Stellar MLS. All rights reserved. All listings displayed pursuant to IDX. All listing information is deemed reliable but not guaranteed and should be independently verified through personal inspection by appropriate professionals. Listings displayed on this website may be subject to prior sale or removal from sale; availability of any listing should always be independently verified. Listing information is provided for consumers personal, non-commercial use, solely to identify potential properties for potential purchase; all other use is strictly prohibited and may violate relevant federal and state law. Data last updated 2025-12-06T23:44:15.907.
