Description
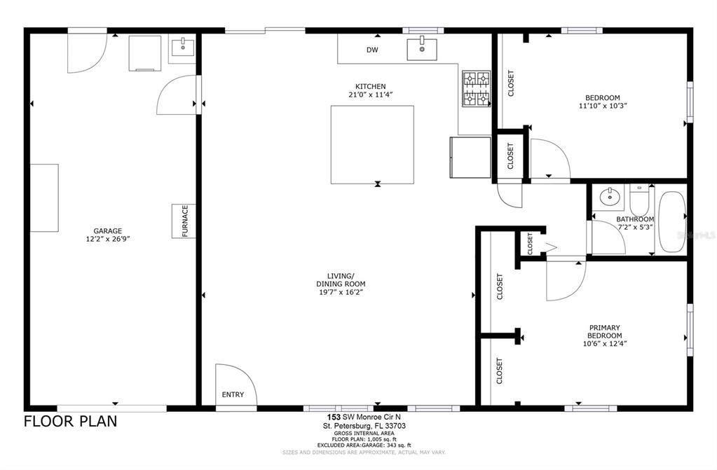
Welcome to this beautifully updated 2-bedroom, 1-bathroom home in the highly sought-after North St. Petersburg area. From the moment you step inside, you’ll notice the attention to detail and modern touches that make this home truly stand out. The open-concept floor plan features luxury vinyl plank flooring throughout, providing both style and durability. The kitchen has been thoughtfully updated with gleaming granite countertops, stainless steel appliances, and plenty of cabinet space, making it a perfect spot for cooking and gathering with family and friends. The two bedrooms are spacious and versatile, offering room for a growing family, home office, or guest accommodations. The updated bathroom adds a fresh, contemporary feel with modern finishes and functional design. Step outside and enjoy Florida living at its best. A private patio area offers the perfect place for outdoor dining or entertaining, while the above-ground pool creates a refreshing retreat during warm summer days. The yard provides plenty of space for gardening, play, or simply relaxing in the sunshine. Located in a prime area of North St. Petersburg, this home is close to shopping, dining, schools, and just a short drive to award-winning Gulf beaches and vibrant downtown St. Pete. Whether you’re looking for your first home, a family residence, or a move-in-ready property with modern updates, this home has it all. To add - The neighborhood is 8-9 FT above sea level thus the low Insurance premium of only $1309.00 per year The area was affected with water because the city shut down the sewage system - No SEA WATER reached the neighborhood
-
2BEDS
-
0.18ACRES
-
1BATHS
-
01/2 BATHS
-
1,010SQFT
-
$327$/SQFT
School Information
Description
Welcome to this beautifully updated 2-bedroom, 1-bathroom home in the highly sought-after North St. Petersburg area. From the moment you step inside, you’ll notice the attention to detail and modern touches that make this home truly stand out. The open-concept floor plan features luxury vinyl plank flooring throughout, providing both style and durability. The kitchen has been thoughtfully updated with gleaming granite countertops, stainless steel appliances, and plenty of cabinet space, making it a perfect spot for cooking and gathering with family and friends. The two bedrooms are spacious and versatile, offering room for a growing family, home office, or guest accommodations. The updated bathroom adds a fresh, contemporary feel with modern finishes and functional design. Step outside and enjoy Florida living at its best. A private patio area offers the perfect place for outdoor dining or entertaining, while the above-ground pool creates a refreshing retreat during warm summer days. The yard provides plenty of space for gardening, play, or simply relaxing in the sunshine. Located in a prime area of North St. Petersburg, this home is close to shopping, dining, schools, and just a short drive to award-winning Gulf beaches and vibrant downtown St. Pete. Whether you’re looking for your first home, a family residence, or a move-in-ready property with modern updates, this home has it all. To add - The neighborhood is 8-9 FT above sea level thus the low Insurance premium of only $1309.00 per year The area was affected with water because the city shut down the sewage system - No SEA WATER reached the neighborhood
Related Properties
© 2026 My Florida Regional MLS DBA Stellar MLS. All rights reserved. All listings displayed pursuant to IDX. All listing information is deemed reliable but not guaranteed and should be independently verified through personal inspection by appropriate professionals. Listings displayed on this website may be subject to prior sale or removal from sale; availability of any listing should always be independently verified. Listing information is provided for consumers personal, non-commercial use, solely to identify potential properties for potential purchase; all other use is strictly prohibited and may violate relevant federal and state law. Data last updated 2026-02-07T23:43:55.41.
